6206 PontiacSan Diego, CA 92115



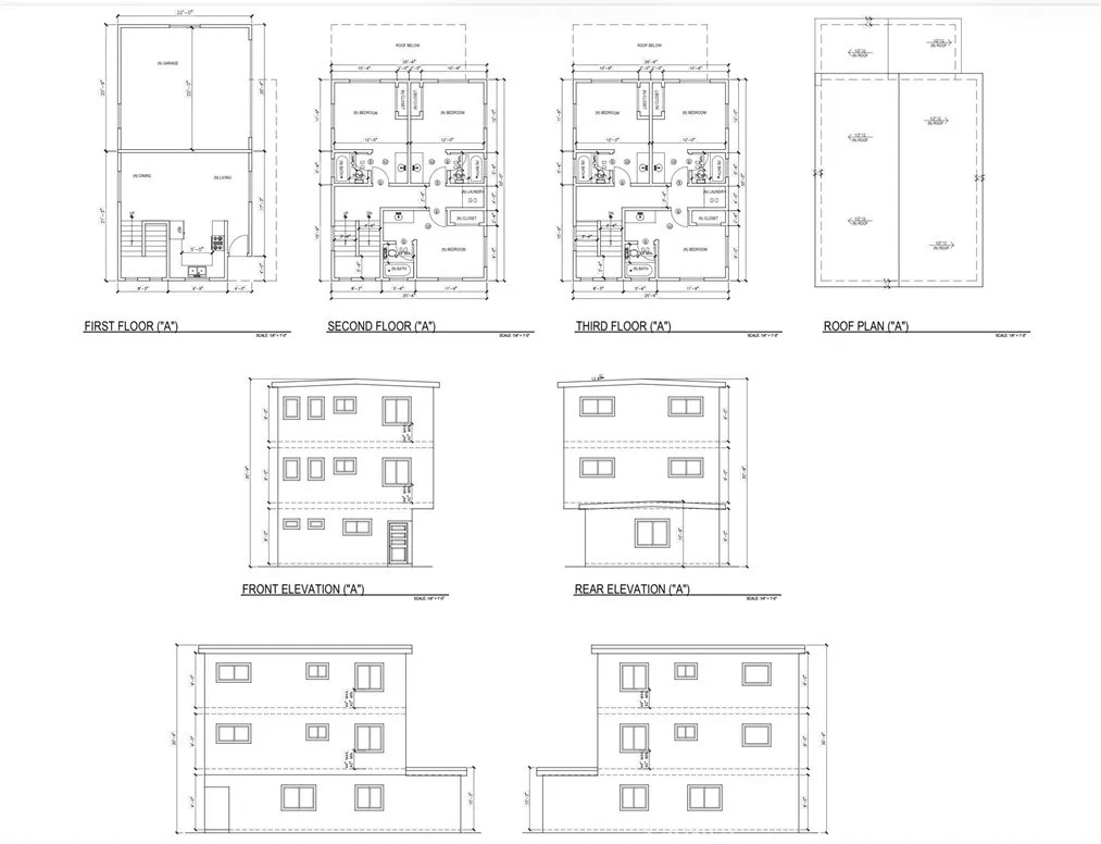
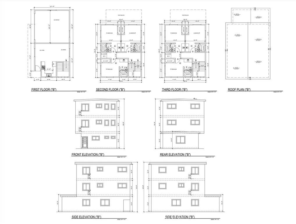
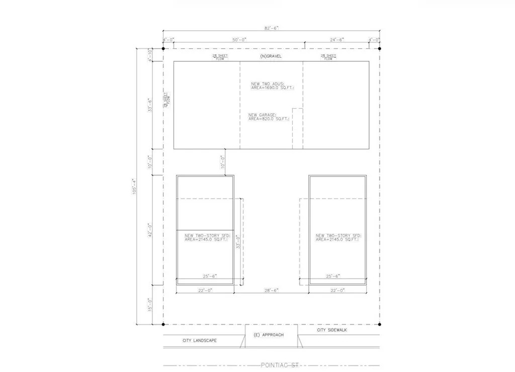
High-density residential development opportunity featuring four units, suitable for the construction of up to 18 bedrooms and 18 bathrooms, with multiple garages. The proposed project offers a total building area of approximately 6,800 square feet, situated on an approximately 8,800 square-foot lot. Proposed plans are available for review; upon buyers approval, plans may be submitted immediately, with an estimated approval timeline of approximately six months, subject to city review and approval. Estimated construction costs are approximately $180 per square foot; please contact the listing agent for additional details. Drive-by viewing only; please do not disturb tenants. Buyer to independently verify all information; seller makes no representations or warranties as to accuracy.
| 2 months ago | Listing updated with changes from the MLS® | |
| 3 months ago | Listing first seen on site |
This information is deemed reliable but not guaranteed. You should rely on this information only to decide whether or not to further investigate a particular property. BEFORE MAKING ANY OTHER DECISION, YOU SHOULD PERSONALLY INVESTIGATE THE FACTS (e.g. square footage and lot size) with the assistance of an appropriate professional. You may use this information only to identify properties you may be interested in investigating further. All uses except for personal, non-commercial use in accordance with the foregoing purpose are prohibited. Redistribution or copying of this information, any photographs or video tours is strictly prohibited. This information is derived from the Internet Data Exchange (IDX) service provided by San Diego MLS®. Displayed property listings may be held by a brokerage firm other than the broker and/or agent responsible for this display. The information and any photographs and video tours and the compilation from which they are derived is protected by copyright. Copyright © 2026 San Diego MLS®.
Last checked 2026

Did you know? You can invite friends and family to your search. They can join your search, rate and discuss listings with you.